Architectural Design Concept
The site of the National Library is a triangular piece of land on the edge of the Government Precinct at the intersection of some of the most important cultural and political institutions of the country. At its Southern point it faces a chaotic junction of local and through traffic. In response to the site, to its privileged position and also to the municipal plan of transforming the area into a cultural and pedestrian destination, we propose diverting through traffic below grade. This would allow for slower and more local vehicular circulation and create a new pedestrian experience between institutions – specifically along the Eastern edge which has all the makings of a grand new public boulevard.
The National Library plays a crucial historic, symbolic and public role. Given its unique location, we think it should feel “of Jerusalem”. Our design is inspired by Jerusalem’s layers of history, unsettled ground, signature stone, hot climate and intense light. We were also inspired by the dual nature of this institution – its need to protect valuable content and its clear purpose to share it. This led us to create a deep and layered building envelope that allows opacity and transparency, simultaneously. Within the building there is a hierarchy of public and private scale, of flexible and fixed spaces in the service of the yet unknown since the “book” as we know it is continuously evolving.
We believe that the National Library of Israel should be a conscious expression of Israel’s cultural values and traditions. We see the Library as a place of developing adjacencies: of interaction and exchange, of contemplation and research, of reflection and inspiration, of past and present, of present and future.
1. The Treasures in the Basement: the Stacks and the Library Operations
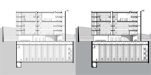
The Library administration, processing and logistics divisions are situated below grade. The exterior glass curtain wall of these areas overlooks English courts carved deep into the northern perimeter of the site that are retained by tall bush-hammered stone walls. The English courts are four meters wide, allowing plentiful light below. A grand set of stairs descends from the main foyer to a lower foyer carved in the midst of the basement area. This foyer acts as an interior light well, bringing additional natural light to each and every floor of the library’s operations’ divisions.
The stacks are housed in a rectangular volume 140 meters long, 40 meters wide, and 15 meters tall, unobstructed by columns. This large, impressive industrial-sized space allows for a modern automated storage and retrieval system to maximize space utilization and efficiency. The shelves are organized in long parallel rows with aisles in between using robotic shuttles that travel the entire length. This vast area is linked to the library and reading rooms above by elevators, with the capacity of depositing books on demand.
2. The Urban Living Room: the Entrance and the Public Foyer
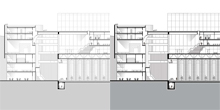
We created a new public scaled space that anchors the building and celebrates its richness and the complexity of its roles. The main entrance to the Library is on Ruppin Boulevard which is further animated by the building’s cafes, gift shop and bookstore. The public foyer is conceived as a covered “urban living room,” a meeting and a greeting place that also provides a variety of social and educational activities. It offers a space for daily users and passers-by, for lingering and visiting, for interaction and repose. The foyer is a space of soft light and shadow which gives order to the entire building and unites all the public functions.
The foyer ascends towards the Library above grade and descends towards the huge archive of stacks located deep below. It mediates between these two powerful places that are accessible and visible all along its axis. Two ceremonial sets of stairs of different natures – one leading up and the other below - meet in the grand space of the foyer. These circulation pieces are marked by light penetrating from above. The descent to the storage below grade is accompanied by rhythmic light with shadows, whereas the ascent towards the working library is marked by a continuous and diffuse strip of light. These sequences exemplify one of the main objectives of the Library – to connect the treasures of yesterday with the library of today, the past with the present, the inspiration with the idea.
3. Around the Core: the Educational and Cultural Facilities
The educational and cultural facilities are housed in a wide triangular form contained by the long, curving glass wall of the foyer, allowing dynamic perspectival views into the public facilities beyond. The transparent wall extends from one end of the building to the other, connecting the interior circulation cores. It looks onto the exhibition hall, the visiting center, the restaurant and the auditorium, and further to the garden outside. The glass wall provides both a sense of privacy and a feeling of inclusion. It terminates at an elevated gallery that overlooks the entire volume of the foyer. A grand ceiling curves, descends, and disappears behind the gallery. Recessed grooves in the naturally plastered, velvety surface of this ceiling bounce and reflect light from above, creating patterns that change throughout the day.
4. The Building Envelope
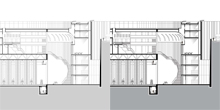
The building envelope is made up of two walls – one of bush hammered stone and the other of low emission glass. The continuous stone "curtain wall" protects and shades the interior glazed façade from heat and glare. It has openings along its surface depending on the function behind. The distance between the exterior stone wall and the glass wall varies all around the building and is entirely dependent on the different functions and exposures. It allows for great flexibility in the placement of windows that relate to the changing needs of the private and the public realm.
Along Ruppin Boulevard the gap between the walls is three meters wide. It is designed as a pedestrian walkway that is a natural extension of the existing sidewalk. It provides shade and long views into all the public spaces and functions of the Library. Beginning on the Southern edge of the site at the garden, the covered walkway leads to the main entrance, the gift shop and the Library’s sidewalk cafe. On the other side of the building, at Kaplan Street, the gap between the stone and glass wall is narrowed to just over one meter. The space is no longer for occupying. Instead the stone protects and insulates the building from heat and direct sunlight, while offering direct views onto the Knesset across the street.
At the reading library volume, the double layer gives way to a curved, glazed object facing south. This exposed piece is protected by horizontal louvers mounted along the entire perimeter. It is the only part of the building which stands free of the stone.
5. The Heart of the Building: the Library and the Wall of Books
The need to replace technological infrastructure, to increase or decrease the size of the reading rooms, to maximize flexibility for future changes, requires a balance between permanent and impermanent space, between constant and variable components within the library.
The reading rooms are defined on the interior by a tall wall of books, five storeys high, visible from the library entrance. This “wall of books” acts as a visual symbol - a reminder of the past and an inspiration for the present, the future, for knowledge and research. In its scale and location, it works together with the stacks as a testament to the importance of the physical book.
Beyond this anchor, the reading spaces are designed to allow for future changes in infrastructure, technologies and spatial organization. The main reading room floors are broken up into flexible modules. Reading stations are currently located in the center of each one, and carrels are spread along the perimeter facing the garden. These can be broken up, combined or clustered differently. Natural light is brought into each module through a vertical channel which bounces, reflects and diffuses the intense light and tames its glare.
The special collection occupies a privileged, crescent shaped two storey room at the top of the library, visible from the ground floor entrance. On every floor of the reading rooms a new perspective from the “wall of books” onto the special collection is revealed across the main space of the library. An additional source of indirect light stretches across this special collection and continues beyond the library, extending its mark all along the building.
The reading library is the tallest element of the National Library. Here, in celebration of the building’s main purpose, the regular building envelope permits itself to be different. The protective stone wall disappears and a glass object becomes distinctive and legible. It sits proudly in the garden and has the most commanding view of the Knesset, the Israel Museum and the surrounding area. From the outside, it is the symbolic jewel in the crown. At night, the entire volume will glow, exposing the treasures inside.


































